【ファレノヒルズ柏原2丁目2号地公開】ダークトーンが織りなす「重厚なモダン邸宅」の全貌
皆様、こんにちは。ファレノホームズ広報担当です。
前回ご紹介した、白とグレーの洗練された「1号地」に続き、ついに柏原2号地の詳細をご紹介します。
1号地が「上品なホテルライク」なら、この2号地はまさに「都会の隠れ家のような重厚モダン」。
圧倒的な存在感を放つ外観から、光と影のコントラストが美しい室内まで、その魅力をたっぷりと解説します。

1. 「石×木目」が魅せる、圧倒的な外観デザイン
まず目を引くのは、ダークグレーを基調とした重厚な外観です。
単一の素材ではなく、2階部分に配した石目調のアクセントパネルが、建物全体に深みと高級感を与えています。
さらに、玄関まわりには温かみのある木目をプラス。
クールな印象の中に、家族を優しく迎え入れる「住まいとしての安心感」を絶妙なバランスで共存させました。並列2台分の駐車スペースも確保し、デザインと実用性を両立させています。

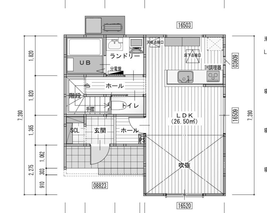
2. 【1階】光が降り注ぐLDKと、計算されたプライバシー
1階のLDKは約16畳(26.50㎡)の大空間です。
ここで注目していただきたいのが、南側に配置されたダイナミックな吹き抜け。
ダークトーンの外観からは想像できないほど、室内は光に満ちあふれた伸びやかな空間が広がります。
広報担当のこだわりポイント:
• 生活感を見せない独立した水回り: キッチン背面のランドリーやバスルームは、リビングのメインスペースから直接見えない位置に配置。急な来客時でもプライベートな空間をしっかり隠せる、今の時代に寄り添った設計です。
• 司令塔のようなキッチン: 対面式のキッチンからは、リビング全体だけでなく、大きな吹き抜けや階段まで一直線に視線が届きます。

3. 【2階】静寂を愉しむ、ゆとりのプライベート空間
吹き抜けを通じて1階の気配を感じつつも、2階は「個」の時間を大切にできる設計になっています。
特に約8畳(8.28㎡)を確保した主寝室は、吹き抜けから適度に距離を置くことで、より静かで落ち着いた眠りの空間に仕上げました。また、廊下面積を最小限に抑え、各居室に最大限の広さを確保した機能的なレイアウトも自慢です。
エピローグ:建売の概念を超える「住まい」を
「建売住宅だけど、注文住宅のような個性を持ちたい」
そんな想いに応えるのが、この柏原2号地です。
1号地の洗練されたモダンさ。
2号地の重厚なモダンさ。
同じエリアで、全く異なる個性を放つ2棟。
ぜひ、ご自身のライフスタイルに合う「理想の邸宅」を現地で体感してみてください。