【ファレノヒルズ若久3丁目二期公開】建売の概念を塗り替える、全貌を公開。
現在進行中のプロジェクト「若久3丁目二期」。
その中でも、フラッグシップモデルと呼ぶにふさわしいパースが完成いたしました。
今回は、これまでの建売住宅のイメージを心地よく裏切る、圧倒的な開放感と機能美を詰め込んだ1階・2階のポイントを詳しくご紹介します。

■ 外観:街並みに馴染み、気品を放つグレーのコントラスト
外観デザインは、洗練されたグレーのコントラストが主役です。
スクエアなフォルムに、質感の異なる石目調のアクセントパネルを配置。
住宅街の中でもひときわ目を引く気品がありながら、決して主張しすぎない。
毎日の帰宅が誇らしくなるような、「大人モダン」な佇まいに仕上げました。

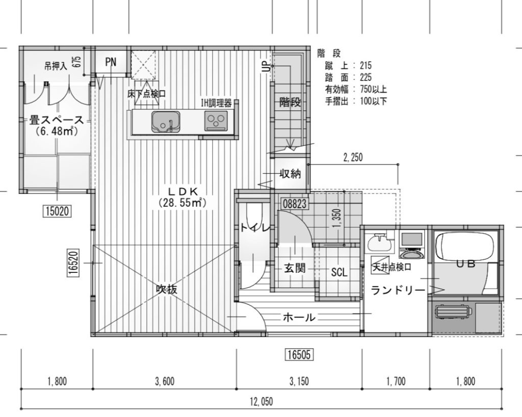
■ 1階:光が降り注ぐ「28.55㎡」のダイナミックLDK
玄関の扉を開けると、そこには想像を超える大空間が広がります。
1. 圧倒的な開放感を生む「吹き抜け」
最大の特徴は、リビング上部に設けた大きな吹き抜けです。
南側からの光が2階を通じて1階の隅々まで降り注ぎ、” 28.55㎡ “ という広大なLDKをさらに伸びやかに演出します。
2. 暮らしを円滑にする「究極の回遊動線」
デザイン性だけでなく、日々の家事効率にも徹底してこだわりました。
キッチンを中心に、大容量のパントリー、ランドリー、洗面室、ホールへと行き止まりなく繋がる「回遊動線」を採用。
朝の忙しい時間帯も、家族が重なり合うことなくスムーズに動ける設計です。
3. プライバシーを守る「巧みな視線カット」
玄関からリビングやキッチンが丸見えにならないよう、壁の配置を緻密に計算。
開放感はそのままに、急な来客時でも家族のプライベートを守れる「安心感」をプラスしました。

■ 2階:収納力と個の充実を両立させたプライベートゾーン
階段を上がった先にある2階は、家族それぞれの安らぎを追求した空間です。
1. 夫婦の理想を叶える「ダブルWIC」
約12.15㎡の広々とした主寝室には、独立した2つのウォークインクローゼット(WIC)を完備しました。夫婦で使い分けたり、季節ごとに整理したり。
「収納量」にゆとりがあることで、寝室を常に整ったホテルライクな状態に保てます。
2. 家族の気配を感じる「吹き抜けホール」
2階のホールは吹き抜けに面しており、1階で過ごす家族の声や気配が優しく伝わります。
独立した部屋でありながら、家全体が緩やかに繋がる。そんな温もりのあるレイアウトです。
■ デザインと実用性の、その先へ。
若久3丁目二期。
そこにあるのは、単なる「広い家」ではなく、住む人の時間を豊かにし、家族の繋がりを深めるための「工夫」です。
28.55㎡のLDKから生まれる心のゆとり、そして回遊動線が生み出す時間のゆとり。
ファレノホームズが提案する、新しい住まいのスタンダードを、ぜひその目でお確かめください。